2007 Mistletoe, San Antonio, TX 78201
Priced at Only: $344,900
Would you like to sell your home before you purchase this one?
- MLS#: 1920818 ( Single Residential )
- Street Address: 2007 Mistletoe
- Viewed: 15
- Price: $344,900
- Price sqft: $282
- Waterfront: No
- Year Built: 1933
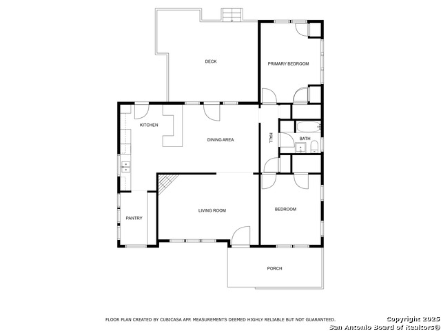
- Bldg sqft: 1224
- Bedrooms: 2
- Total Baths: 1
- Full Baths: 1
- Garage / Parking Spaces: 1
- Days On Market: 30
- Additional Information
- County: BEXAR
- City: San Antonio
- Zipcode: 78201
- Subdivision: Woodlawn Terr Historic
- District: San Antonio I.S.D.
- Elementary School: Call District
- Middle School: Call District
- High School: Call District
- Provided by: Preston Granger
- Contact: Preston Granger
- (210) 771-1809

- DMCA Notice
Description
This beautifully restored 2 bed/1 bath home blends timeless charm with modern upgrades. Featuring a fully remodeled kitchen with quartz countertops with waterfall edge, custom cabinets, and designer backsplash, plus refinished original hardwood floors and elegant recessed lighting throughout. The spacious layout is filled with natural light, and both the electrical and plumbing systems have been completely updated. Enjoy peace of mind with a leveled foundation, new HVAC ductwork, tankless water heater, and
Payment Calculator
- Principal & Interest -
- Property Tax $
- Home Insurance $
- HOA Fees $
- Monthly -
Features
Building and Construction
- Apprx Age: 92
- Builder Name: Unknown
- Construction: Pre-Owned
- Exterior Features: Asbestos Shingle, Stone/Rock
- Floor: Ceramic Tile, Wood
- Kitchen Length: 12
- Roof: Composition
- Source Sqft: Appsl Dist
School Information
- Elementary School: Call District
- High School: Call District
- Middle School: Call District
- School District: San Antonio I.S.D.
Garage and Parking
- Garage Parking: None/Not Applicable
Eco-Communities
- Water/Sewer: Water System, Sewer System, City
Utilities
- Air Conditioning: One Central
- Fireplace: One, Living Room, Mock Fireplace
- Heating Fuel: Natural Gas
- Heating: Central
- Recent Rehab: Yes
- Utility Supplier Elec: CPS Energy
- Utility Supplier Gas: CPS Energy
- Utility Supplier Grbge: CPS Energy
- Utility Supplier Sewer: SAWS
- Utility Supplier Water: SAWS
- Window Coverings: None Remain
Amenities
- Neighborhood Amenities: Jogging Trails
Finance and Tax Information
- Days On Market: 29
- Home Owners Association Mandatory: None
- Total Tax: 6661.59
Other Features
- Block: 10
- Contract: Exclusive Right To Sell
- Instdir: From downtown San Antonio, travel West on IH 10 and exit Woodlawn. Turn left onto W Woodlawn Ave. Drive 0.8 mi Turn right onto San Antonio Blvd. Turn left at the 1st cross street onto W Mistletoe Ave. House will be on the right.
- Interior Features: One Living Area, Breakfast Bar, Walk-In Pantry, Laundry in Closet, Laundry Main Level
- Legal Description: Ncb 1962 Blk 10 Lot 2
- Ph To Show: 210-222-2227
- Possession: Closing/Funding
- Style: One Story, Historic/Older
- Views: 15
Owner Information
- Owner Lrealreb: No
Contact Info
- Cynthia Acosta, ABR,GRI,REALTOR ®
- Premier Realty Group
- Mobile: 210.260.1700
- Mobile: 210.260.1700
- cynthiatxrealtor@gmail.com
Property Location and Similar Properties
Nearby Subdivisions
26th/zarzamora
Balcones Heights
Beacon Hill
Five Points
Hicrest North
Hillcrest
Hillcrest-north
Jefferson Terrace
Los Angeles - Keystone
Los Angeles Heights
Los Angeles Heights Sa
Los Angeles Heights/keystone H
Los Angeles Hts-central (sa)
Los Angeles Hts-central Sa
Los Angeles Hts/keystone Histo
Los Angeles Keystone
Los Angeles-keystone
Los Angels Keystone
Monticello Heights
Monticello Park
Monticello Park Historic (sa)
Villa Del Sol
Woodlawn Lake
Woodlawn Terr Historic
Woodlawn Terrace



























